deep retrofit of Wilmcote House, Portsmouth @ SbyD.
1/6

Penhallow is a self-built, 4-bedroom house and garage designed to meet the AECB Low Energy Standard, designed by Director Mark Elton while at Cowan Architects. Constructed with a highly insulated raft foundation and twin-stud timber frame construction, the client was looking for a low running cost, low maintenance home that would allow this Cornish family to remain in their village well into old age. Benefitting from sea views facing the winter sun, the client wanted a contemporary Cornish vernacular-style dwelling on the plot which was considered, in planning terms, to be 'rounding off' the settlement boundary. Using a combination

of rendered blockwork, fibre-cement cladding and local stone with both slate and zinc roofs, the dwelling sits comfortably with its neigbours. An open plan layout connects family room to kitchen to living room seamlessly while the ground floor guest suite will in time allow for adaptible living in the future.
The thermally-broken timber frame is filled with 300mm of recycled newspaper cellulose and lined with an airtight OSB board. Triple-glazed windows, sliding and entrance doors from Ecohaus Internorm complete the efficient envelope, which achieved an airtightness below 1 air change per hour. Heat recovery ventilation supplies fresh air throughout the dwelling, even to the dedicated pet room!

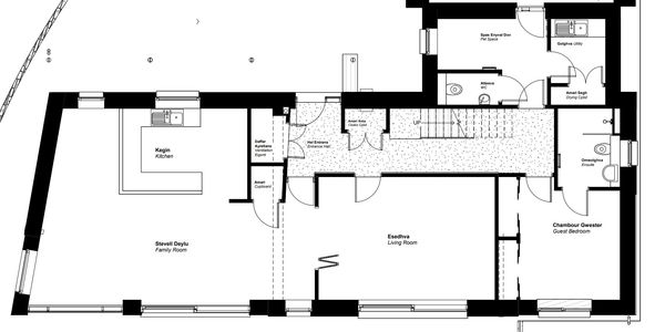
The 'simplehaus' design concept rose to the NaCSBA design challenge of an affordable, self-build home that met the highest standards of energy efficient design. Utilising the unique combination of buildability and low energy performance provided by the (now-withdrawn) RockShell walling system, coupled with the design rigour of the Passivhaus standard, Simplehaus provides a comfortable and spacious home for a family of four that cost just a few pounds to heat annually. Envisaged as an 85m² contemporary cottage, Simplehaus is based an uncomplicated aesthetic and an efficient, solar-biased layout, whilst also delivering state-of-the-art efficiency and living standards. Super-insulated fabric, triple-glazed windows and whole house heat-recovery ventilation keep the building cosy and healthy in winter; natural cross-ventilation, tall ceilings and external louvre blinds keep the building cool in summer. The open-plan living area provides space for relaxing, cooking, dining and working.

Compact service spaces keep material costs and system heat losses to a minimum yet the layout still accommodates a separate utility including a built-in clothes drying cupboard. In construction terms, simplicity is key: from the raft concrete floor slab to the modular load-bearing walls or the engineered timber floor and roof joists, the components have been pared down to the minimum: and yet the building retains the capacity for extending upwards in the future. The energy statistics were impressive: only 1225 kWh of space heating needed all year, peaking at a lowly maximum of only 1050W - about the same as a travel hairdryer! Operational energy demand could also have been met by solar panels.

This commercial development for major building materials supplier Wolseley UK, was commissioned to promote and showcase sustainable materials and technologies in their supply chain. The challenge for Awen Director, Mark Elton, (then lead designer at ECDA) was to incorporate a vast range of different materials and components in a coherent and aesthetically pleasing manner all the while expressing the principles of sustainable design.
The concept design envisaged two distinct volumes, one single-storey to the north, the other 2-storey to the south, joined by a double height glazed 'street'. The south wing utilised new pre-cast construction techniques and other innovative systems including 'bubbledeck' floor slabs, timber triple-

glazed curtain walling and solar PV shading louvres. The north wing presented timber construction and natural materials such as cork, woodfibre and planted roofs with a display roof for solar thermal collectors. Both wings incorporated 'cut-away' panels to reveal sub-lining assemblies with interactive display panels to demonstrate the various heating technologies.
The Center was also used to train installers taking advantage of the small lecture theatre built into the curved stern of the north wing. It was awarded a bespoke BREEAM 'Excellent' rating and was voted the winner of the Edie Award for Best Sustainable Construction project in 2008.

In the Thamesmead estate, south-east London, Sustainable by Design undertook one of the largest pre-fabricated refurbishment projects in the UK with social housing provider Peabody. The 5-storey scheme originally comprised nine 3-bed maisonettes and nine 4-bed maisonettes stacked above parking garages. The retrofit was implemented using an innovative prefabricated timber cassette approach developed by contractor Gumpp & Maier. Based on precise laser survey information, external wall components were fabricated in Gumpp & Maier’s Bavarian factory from timber stud cassettes filled with cellulose insulation which were then fitted with triple-glazed windows, doors and rain screen cladding. The storey-high timber cassettes were transported to site and craned onto pre-positioned load-bearing battens, taking just days to complete an entire facade.
The existing PVC windows and spandrels were then removed internally and the zone between new cladding and concrete facade insulated and lined to give a U-value of 0.13 W/m²K. A new ventilated pitched roof was added over the original flat roof and lantern to move rainwater goods to the outside of the building and the zinc shingles were also installed in-situ. A final intervention required the retrofit of heat recovery ventilation systems and replacement boilers, although further fit-out work internally was implemented by the new social landlord.
The targeted 80% reduction in heating demand eradicates fuel poverty and shows what can be achieved through applying Passivhaus principles to large-scale prefabricated retrofit in terms of health, well-being and transformative effect of architecture.

The retrofit construction cost of circa £3 million reflected not only the exemplary standard to which the scheme was targeted but also the extensive additional community, office and retail space it created in the heart of a neighbourhood previously lacking such resources.
Anecdotal evidence from residents pointed to virtually no heating requirement over winter and health improvements from better internal air quality - a family who moved in from a similar, unrefurbished property in the estate where the children had suffered greatly from asthma confirmed that the symptons had disappeared after only three months in the retrofitted maisonettes. The health gains of warm, well-ventilated homes is an under-reported benefit of deep retrofit.

A Cornish family's desire to extend their property to suit a growing household, together with their commitment to a lower carbon lifestyle, led to this opportunity to 'improve not move'. The 2-storey rear extension provided a new bedroom and bathroom at first floor whilst, at ground level, the kitchen and dining space were re-configured to address the tiered garden to the rear. Timber-framed construction allowed high levels of insulation between and over the studwork under a facing of shiplap cedar cladding boards.
The stone wool insulation was continued beyond the extension to fully wrap the existing chalet bungalow walls and finished with a vapour-open coating of white silicone render. With stone wool insulation also added to the floor, via the accessible sub-floor void, and to the roof, by removing the existing slates to fit over-rafter insulation, the dwelling was comprehensively thermally upgraded.
Rooflights and light pipes were added to bring light and views deep into the landing. Centralised mechanical extract ventilation draws in fresh air whilst removing stale moist air from the habitable rooms and bathrooms.

Awen Director, Mark Elton, was twice involved in this exemplar retrofit of a high-rise social housing block in central Portsmouth: initially to develop concept proposals and tenant engagement for the deep retrofit strategy with ECD Architects, and then again to work with the contractor on the technical design and construction phase with Sustainable by Design. The panellised concrete post-war buildings had no more than 1" of polystyrene insulation and, as a result, were difficult to heat. Residents were originally hoping for a new district heating scheme but refurbishing to the EnerPHit standard instead meant that heating is hardly needed today.

With around 300mm of non-combustible stone wool insulation added to external walls, more across the roof, and triple-glazed airtight windows, heat losses from dwellings were dramatically reduced - by around 80%. The inner facades were reconfigured to enclose deck access walkways and rooms were extended to give more living space - all the simplifying the form of the building which would otherwise have been very complex to insulate without excessive cold thermal bridges.
Heat recovery ventilation was retrofitted into existing cupboards and ceiling voids to provide pre-warmed fresh air to all rooms, eradicting the previous health issues of condensation and mould growth.
One more line

Awen (pronounced ah-wen) is a Cornish language word meaning inspiration, creativity and imagination, defined by some as the `flowing spirit’ that links between people, cultural life and community. The three rays of the Celtic awen symbol are believed to signify knowledge, truth and passion.
Mark is a proud Cornishman, raised on the south coast of the duchy in St Austell. He maintains strong links with home and has continually sought to work on projects in Cornwall throughout his career.
We are always interested in opportunities to work on Cornish projects with sustainable, Passivhaus or deep retrofit ambitions.

Bude - a pedestrian-friendly masterplan for a new housing development in the Broadclose Farm area on the edge of town. The scheme went on to win the Richard Fielden Housing Design Award in 2007.
Rock - a 6-bedroom low energy dwelling in an inverted arrangement to take advantages of views over the Camel estuary.
Trethurgy, St Austell - a 4-bedroom family home designed to the AECB Low Energy Standard in a contemporary Cornish vernacular with super insulation and triple-glazed fenestartion, airtight construction, heat recovery ventilation, solar PV and air-source heat pump technology.

Trelissick - a floating restaurant concept for the Fal estuary, inspired by upturned oak leaves and local oyster dredger sail boats.
Falmouth - a combined energy efficiency retrofit with external composite render/stone wool insulation and 2-storey timber-clad extension with centralised extract ventilation.
Redruth - working with Mei Loci landscape architects for Golden Tree Productions, the scheme developed a concept proposal for a 21st century 'Plen an Gwari' medieval amphitheatre including modern theatre facilties designed to meet the Passivhaus standard.

Mark is one of the few hundred people in the world (and the only architect) who can fluently speak his native Cornish language, Kernewek. He has added many architectural terms to the Kernewek glossary and he was the first architect ever to submit a planning Design Statement to Cornwall Council in the language. He is an elected a member of the Cornish Language Board.
Mark was also a founder of the London Cornish Underground - organisers of regular social events for London's Cornish population. This contribution to community and to the language was recognised by the Gorsedh Kernow when he was made a Bard in 2018.
Copyright © 2023 Awen Design - All Rights Reserved.